TRS 5 Specification Detail - Downloadable Files

  • These details are generally in accordance with E2/AS1 and or the NZ metal roof & wall cladding code of practice.

  • The building designer/ Architect is ultimately responsible for details to meet the NZ Building Code & E2/AS1.

  • For Further information please contact your nearest Roofing Store.

 

TRS 5 - Apron Kickout
Detail

Click to download and view in:
DWG | DXF | PDF | PNG

TRS 5 - Apron Head
Detail

Click to download and view in:
DWG | DXF | PDF | PNG

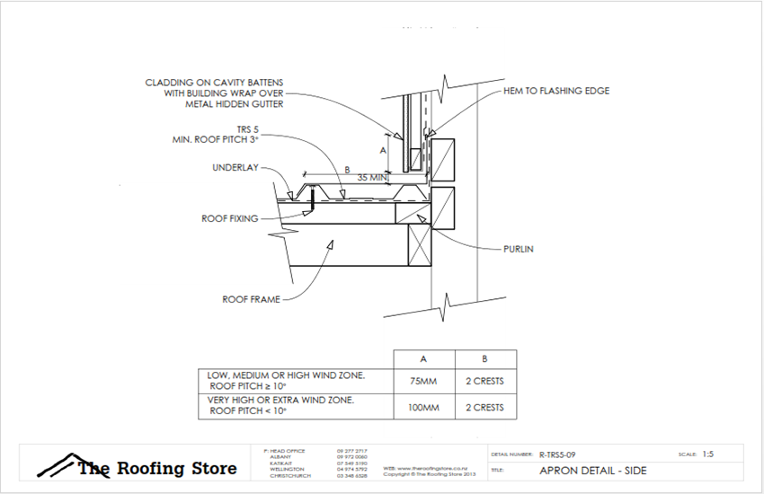
TRS 5 - Apron Side
Detail

Click to download and view in:
DWG | DXF | PDF | PNG

 

TRS 5 - Barge Head
Detail

TRS 5 - Barge Side
Detail

TRS 5 - Chimney Penetration
Detail

Click to download and view in:
DWG | DXF | PDF | PNG

Click to download and view in:
DWG | DXF | PDF | PNG

Click to download and view in:
DWG | DXF | PDF | PNG

 

TRS 5 - Change of pitch
external detail

Click to download and view in:
DWG | DXF | PDF | PNG

TRS 5 - Change of pitch
internal detail

Click to download and view in:
DWG | DXF | PDF | PNG

TRS 5 - Gutter flashing
detail

Click to download and view in:
DWG | DXF | PDF | PNG

 

TRS 5 - Hidden gutter
detail

Click to download and view in:
DWG | DXF | PDF | PNG

TRS 5 - Internal
Gutter

Click to download and view in:
DWG | DXF | PDF | PNG

TRS 5 - Pipe Penetration
Detail

Click to download and view in:
DWG | DXF | PDF | PNG

 

TRS 5 - Pipe Penetration
Side Detail

Click to download and view in:
DWG | DXF | PDF | PNG

TRS 5 - Pipe Penetration
Detail Sectional

Click to download and view in:
DWG | DXF | PDF | PNG

TRS 5 - Top Ridge Roll
top detail

Click to download and view in:
DWG | DXF | PDF | PNG

 

TRS 5 - Top Ridge square
top detail

Click to download and view in:
DWG | DXF | PDF | PNG

TRS 5 - Top ridge hip
flashing detail

Click to download and view in:
DWG | DXF | PDF | PNG

TRS 5 - Typical roof layout
exposed rafters

Click to download and view in:
DWG | DXF | PDF | PNG

 

TRS 5 - Typical roof
layout

Click to download and view in:
DWG | DXF | PDF | PNG

TRS 5 - Valley flashing
detail

Click to download and view in:
DWG | DXF | PDF | PNG